Dove 05

Spree One

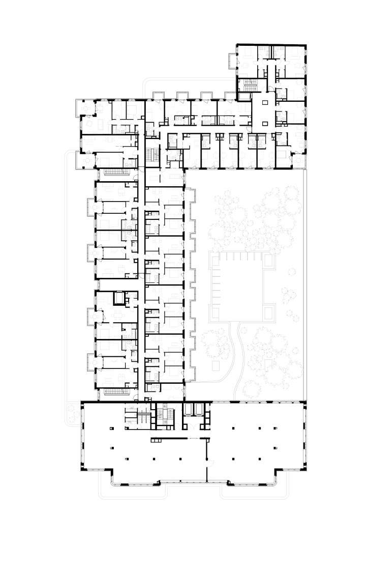
Am Zu­sam­men­fluss von Land­wehr­ka­nal und Spree im nörd­li­chen Char­lot­ten­burg liegt das Pro­jekt SPREE ONE. Das ge­mischt ge­nutz­te Haus mit 155 Woh­nun­gen, Bü­ros, Lä­den und ei­ner Kin­der­ta­ges­stät­te er­setzt ei­nen Bau aus den 60er Jah­ren. Das ehe­mals voll­stän­dig über­bau­te Grund­stück ist ent­sie­gelt und er­hält ei­ne mä­an­dern­de städ­te­bau­li­che Fi­gur, die neue Stadt­räu­me ent­ste­hen lässt: am Land­wehr­ka­nal schließt der zehn­ge­schos­si­ge Bau­teil die Stadt­kan­te zwi­schen Spree­resi­den­zen und dem Ver­wal­tungs­ge­bäu­de auf der Ost­sei­te der Do­ve­stra­ße. Nach Wes­ten ent­steht ein Gar­ten, wo bis­lang ei­ne ma­ro­de Hoch­ga­ra­ge stand. Zur Do­ve­stra­ße nach Os­ten fin­det sich über den Ein­zel­han­dels­flä­chen ein in­ten­siv be­grün­ter Dach­gar­ten. Die ho­ri­zon­ta­le Glie­de­rung der Fas­sa­de wird von gel­ben Zie­gel­bän­dern ge­prägt, die mit ver­putz­ten Ge­sim­sen al­ter­nie­ren. Der neue Turm zum Land­wehr­ka­nal nutzt die Gunst der La­ge: die nachts il­lu­mi­nier­te Fas­sa­de ist mit­tig in die Ach­se der süd­li­chen, 650 m lan­gen Cau­er­stra­ße po­si­tio­niert und be­kommt da­durch ei­ne be­son­de­re Prä­senz im Stadt­raum.

Auftraggeber

Optima Center Charlottenburg
Quintas mbH & Co.KG

Leistungsphasen

1 - 5, Künstlerische Oberleitung

Zeitraum

2014 - 2018

BGF

21.000 qm

Kosten

>120 mio. EUR

Standort

Dovestraße 1, 3 und 5
10578 Berlin

Bildrechte

Maximilian Meisse | Florian Seelig |
Optima-Aegidius-Firmengruppe |
Nöfer Architekten

Dove 05
Dove 04
Dove 01
Dove neu 9 200327
Dove 02
Dove neu 4 200327
Dove neu 1 190912
Dove neu 10 200327
Dove neu 1 200327 v2
Dove neu 5 200327
Dove neu 2 200327
Dove neu 2 190912
Dovestrasse 20200515 016 web v2
0346 DoveStr Innenansicht 02
0346 DoveStr Innenansicht 01
0346 DoveStr Innenansicht 03
Dove neu 6 200327
0346 DoveStr Innenansicht 04
Dove neu 7 200327
Dove neu 8 200327
Dovestrasse 20200706 011 web
Dovestrasse 20200706 041 web
Dove neu 6 190912
Dove neu 7 190912 v2
0341 Heydt 1 01